HOUSE INTRODUCTION

里山の四季を、暮らしのまんなかに

町の中心地から少し離れた、囲炉裏のある大きな古民家。

  • 売却物件
  • 米田地区
  • 木造一部2階建て

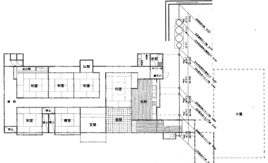
物件の概要
所在地 藤里町粕毛字室岱 土地面積 2,027.5㎡
賃貸価格 売却価格 要相談
建物面積 254.53㎡ 構造規模
建築時期 昭和40年 空家時期 平成27年4月から
物件の設備状況・特記事項
電気 ガス LPガス
風呂 灯油 水道
下水道 〇(浄化槽) トイレ 水洗
駐車場 車庫1台分(庭へも駐車可能) あり
その他
主要施設へのアクセス

藤里町役場4.5km / 二ツ井消防署藤里分署5.2km / 能代警察署藤里駐在所4.8km / 藤里保育園4.7km / 
藤里幼稚園5.2km / 義務教育学校5.2km / 温泉(湯の沢温泉郷)9km / スーパー(いとく藤琴店)4.5km / 
秋田銀行4.5m / JAあきた白神藤里支店4.4km / 藤琴郵便局4.8km / ガソリンスタンド(最寄)4.6km

Loading..
LOADING