HOUSE INTRODUCTION

静かな住宅街の中にある平屋建てのお家です。

ペット飼育可能!付帯物件として、畑や物置小屋もついてきます!

  • 売却物件
  • 賃貸物件
  • 清水岱地区
  • 木造一階建

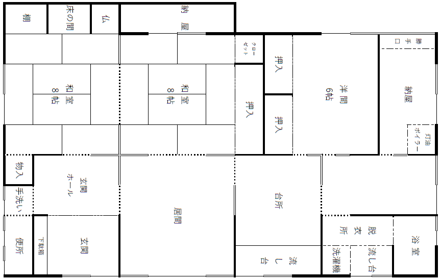
物件の概要
所在地 藤里町粕毛字清水岱 土地面積
賃貸価格 要相談 売却価格 50万円
建物面積 構造規模 木造平屋建
建築時期 昭和58年 空家時期 令和7年1月
物件の設備状況・特記事項
電気 ガス LPガス
風呂 灯油 水道
下水道 トイレ 水洗
駐車場 1台分 あり
その他 賃貸期間中の修繕は借主が負担。
主要施設へのアクセス

藤里町役場 1.4km / 二ツ井消防署藤里分署 2.0km / 能代警察署藤里駐在所 1.6km / 藤里保育園 1.5km
藤里幼稚園 1.9km / 義務教育学校 1.9km / 温泉(湯の沢温泉郷) 5.8km
スーパー(いとく藤琴店) 1.5km / 秋田銀行 1.5km / JAあきた白神藤里支店 1.2km / 藤琴郵便局 1.8km
ガソリンスタンド(最寄) 1.7km

Loading..
LOADING