HOUSE INTRODUCTION

書斎や子ども部屋など、部屋数十分!

町の中心地から少し離れた住宅街に位置する大きなお家。
趣味の部屋が欲しい。子供部屋が欲しい。二世帯で同居したいなど、
様々な使用方法に対応できます。






















  • 売却物件
  • 大沢地区
  • 木造2階建

物件の概要
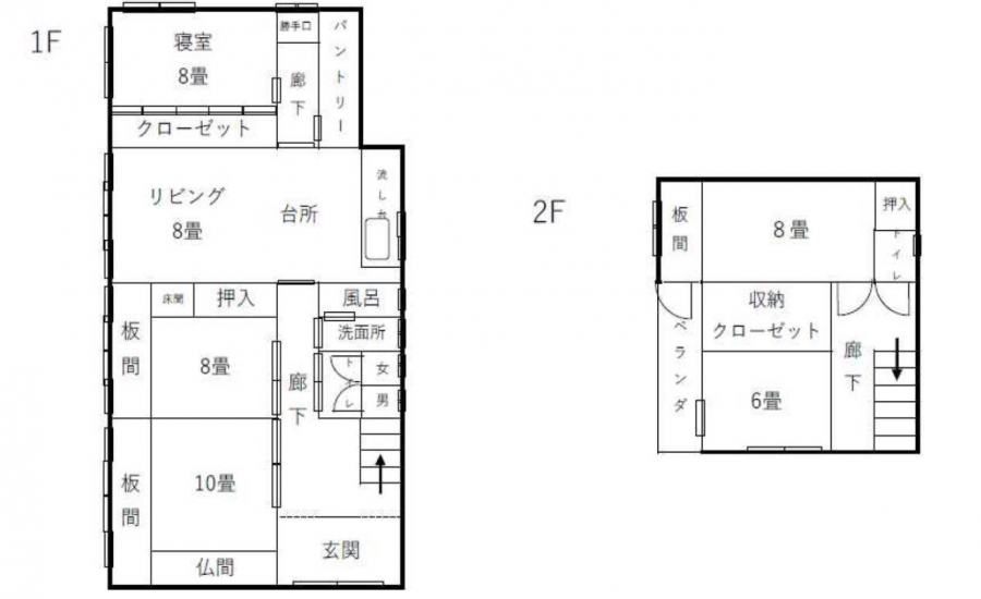
所在地 藤里町大沢字蕨台 土地面積 839㎡
賃貸価格 - 売却価格 3,500,000円 (応相談)
建物面積 構造規模
建築時期 空家時期 令和7年1月
物件の設備状況・特記事項
電気 ガス LPガス
風呂 LPガス 水道
下水道 トイレ 水洗
駐車場 2台
その他 家具、家電等そのまま引き渡し可。(応相談)
住宅裏手に物置小屋あり。
主要施設へのアクセス

藤里町役場 2.9km / 二ツ井消防署藤里分署 2.8km / 能代警察署藤里駐在所 2.5km / 藤里保育園 4.0km
藤里幼稚園 2.1km / 義務教育学校 2.1km / 温泉(湯の沢温泉郷) 7.4km
スーパー(いとく藤琴店) 2.9 km / 秋田銀行 2.9km / JAあきた白神藤里支店 2.9km / 藤琴郵便局 2.7km
ガソリンスタンド(最寄) 2.3km

Loading..
LOADING